Твердотопливный котел KRAFT серии L 75 кВт

Крафт – украинско-немецкое предприятие, появившееся на отечественном рынке сравнительно недавно. Производство находится в Чернигове, а разработкой продукции занимается немецкое конструкторское бюро. Компания выпускает эффективную отопительную технику, которая по качеству не уступает европейским аналогам, а стоит дешевле.
Назначение
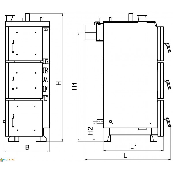
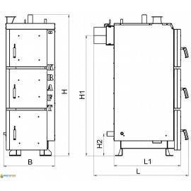
Kraft L 75 – универсальный котел длительного горения с ручной подачей топлива и увеличенной камерой горения с форсунками для подачи вторичного воздуха. На одной загрузке работает до 24 ч. Предназначен для отопления жилых, бытовых и производственных помещений до 750 м2.
Работает на твердом топливе – угле, торфе, дровах, торфяных и опилочных брикетах, древесных отходах.
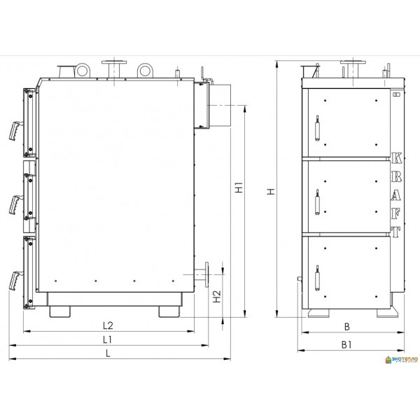
Поставляется в двух модификациях:
Особенности
Всё оборудование изготовлено из котловой стали 6 мм, рассчитанной на длительную эксплуатацию при температурах до 1200°С.
Потери тепла минимальны благодаря слою плотного изоляционного материала под декоративной обшивкой.
Топка объемная. В верхней ее части находятся форсунки для подачи вторичного воздуха. Они дают возможность дожигать до конца топливо любого качества и достигать наибольшей продолжительности работы на единоразовой загрузке.
Охлаждаемые водой колосники сделаны из бесшовных цельнотянутых труб из стали той же марки, что и сам котел. Это гарантирует их долговечность и устойчивость к высоким температурам.
Четырехходовой теплообменник имеет пластинчатую конструкцию и увеличенную площадь теплообмена. Эффективно отбирает тепло уходящих дымовых газов. Доступен для чистки через верхнюю ревизионную дверцу.
Плотность прилегания дверец регулируется. Глубина регулировки 25 мм. Это значит, что камера горения останется герметичной, а дым не попадет в помещение независимо от того, как сильно просел уплотнитель на дверцах.
Также предусмотрена защита дверец от прогорания. Для этого на их внутренней поверхности установлены специальные защитные экраны. Промежуток между экраном и дверцей заполняется материалом с низким коэффициентом теплопроводности, который дополнительно защищает металл от перегрева.
Ножки котла регулируются по высоте, благодаря чему отопительный агрегат можно установить даже на поверхности с некоторым уклоном.
Чтобы поддерживать нормальное горение в энергонезависимом режиме, котел оснащен шибером на дымоходном патрубке и заслонкой на нижней дверце. Первый позволяет вручную регулировать тягу, вторая обеспечивает подачу воздуха в топку.
Автоматизация
Может комплектоваться автоматикой: контроллером и вентилятором наддува. Это позволяет управлять горением и получать максимальный тепловой эффект при низком расходе топлива.
При желании на котел можно установить механический регулятор тяги. В таком случае он будет работать независимо от электричества.
|
Показатели |
Ед. измер. |
Значения |
|
Мощность |
кВт |
75 |
|
Отапливаемая площадь |
м2 |
750 |
|
Номинальный КПД, не менее |
% |
86 |
|
Площадь теплообмена |
м2 |
6,5 |
|
Параметры топки: |
||
|
- объем |
дм3 |
305 |
|
- глубина |
мм |
710 |
|
- ширина |
550 |
|
|
Водяная емкость котла |
л |
270 |
|
Температура воды |
°С |
58 – 90 |
|
Давление, рабочее / испытательное |
МПа |
0,2 / 0,4 |
|
Энергопотребление |
Вт |
160 |
|
Габариты загрузочной дверцы: |
||
|
- высота |
мм |
300 |
|
- ширина |
460 |
|
|
Диаметр патрубков подключения |
мм |
65 |
|
Присоединительный диаметр дымохода |
мм |
245 |
|
Параметры дымохода: |
||
|
- сечение |
см2 |
490 |
|
- внутренний диаметр |
мм |
250 |
|
- высота |
м |
7 |
|
Габаритные размеры: |
||
|
- ширина |
мм |
750 |
|
- высота |
1875 |
|
|
- глубина |
1350 |
|
|
Вес |
кг |
788 |
Комплект поставки:
Купить котел Kraft серии L в Харькове или с доставкой по Украине можно, позвонив по вышеуказанным телефонам или сделав онлайн заказ.
| Характеристика | |
| Варочная поверхность | нет |
| Мощность, кВт | 75 |
| Особенности | длительного горения |
| Материал теплообменника | сталь 6 мм |








